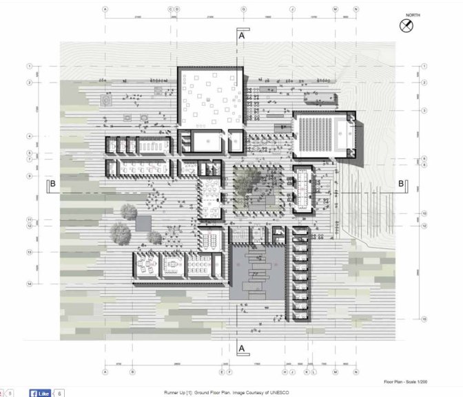
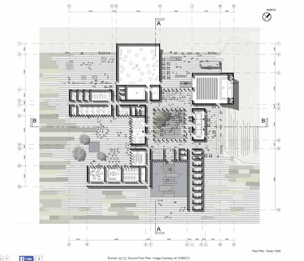
هزارستان: طراحان آرژانتینی برنده ی طرح و مهندسی مرکز فرهنگی بامیان باستان
سازمان یونسکو برنده ی مسابقه برای طرح مرکز فرهنگی بامیان باستان را اعلام کرد. طبق خبر منتشر شده در سایت مهندسی روز، یک تیم آرژانتینی برنده ی این مسابقه می باشد.
آنتولوژی شعر شاعران جهان برای هزاره
مجموعه شعر بی نظیر از 125 شاعر شناخته شده ی بین المللی برای مردم هزاره
این کتاب را بخرید










پيامها
20 فبروری 2015, 05:40
خیلی زیبا، مبارک باشد.
هرگوشه این خاک که آباد شود، وطن همهء ما آباد میشود.
20 فبروری 2015, 11:31
first of all they need food